Herbert K. Fowler designed Deepwood House, located in Fayetteville, Arkansas, in 1960. One of his earliest built residential designs, Deepwood stands as a benchmark achievement in Fowler's professional career.
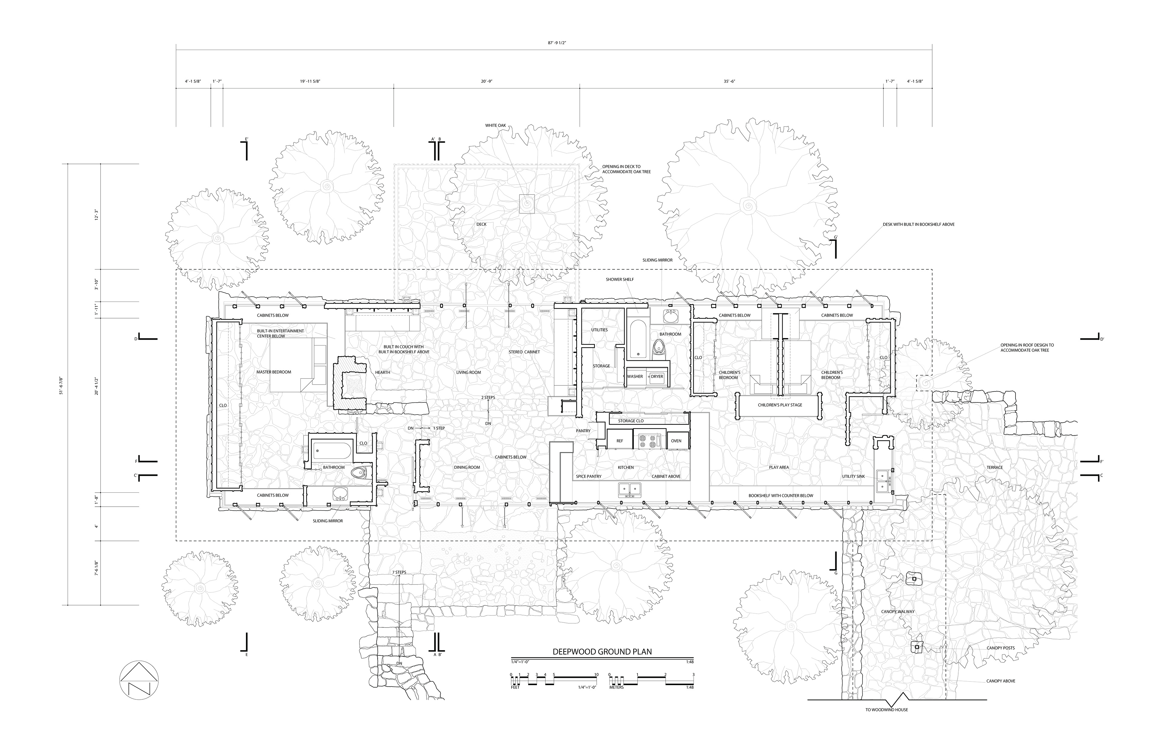
Located in the Arkansas Ozarks, Fowler designed Deepwood House in a regionally inspired idiom, with an understanding of site and materials adopted from diverse sources. The house utilizes wood, stone, and glass construction materials in an expressive manner, and is important as an example of post-World War II modern residential design interpreted in a regionalist manner.
Located in the Arkansas Ozarks, Fowler designed Deepwood House in a regionally inspired idiom, with an understanding of site and materials adopted from diverse sources. The house utilizes wood, stone, and glass construction materials in an expressive manner, and is important as an example of post-World War II modern residential design interpreted in a regionalist manner.
Deepwood House was sited on the edge of a bluff southwest of the then-modest college town, in an area that had once been logged by the lumber industry. The bluff siting afforded views from the house to the growing town in the distance.
The continuity of materials deployed in the house, especially native field stone and cedar siding, begins before entry to the house, continues on the interior, and spills out onto the terrace spaces in a nearly seamless procession. Terrace doors and operable windows along the North and South facades allowed positive airflow and enhanced passive cooling. Few interior doors and the use of low partitions asserted an unusual degree of spatial openness throughout the house. Cabinetry built from locally harvested black walnut was featured throughout the house. A large native-stone hearth served to anchor the central gathering and symbolic center of the house. Butt glazing at the corners of the house added to the de-materialization of the structure and enhanced the feeling of lightness throughout.
A guest house, Woodwind, was added to the Deepwood ensemble in 1964. The house was designed to match the materials and detailing of Deepwood House, with a much simplified interior. The East elevation included butt glazing at the corners, and jalousie windows in the bedroom, kitchen, and bathroom enhanced natural ventilation. A native-stone hearth and wall divides the major interior spaces.
Drawings and research for this project were completed by students of the Fay Jones School of Architecture + Design, Stephan Umierski, Chelsea Garrison, and myself for the 2016 Peterson Prize Competition, where they received 3rd place.